Rif: STEFANO 1010
CESENATICO
FORLI'-CESENA
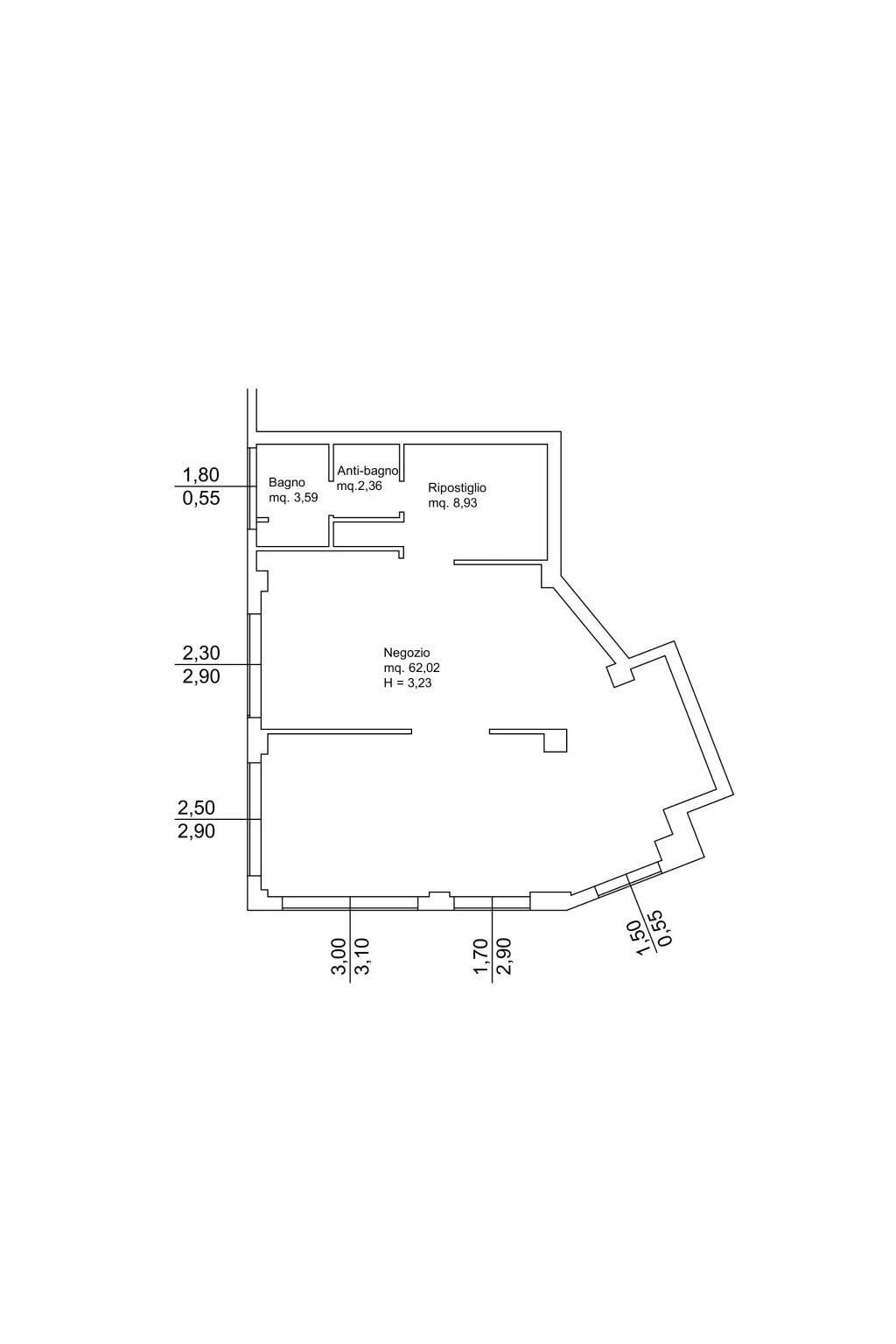
CESENATICO: Agenzia immobolbiliare Leonardi propone in posizione strategica a circa 50 metri dalla spiaggia di Valverde di Cesenatico negozio ad angolo di mq 87,00 mq con ampie vetrine; il locale è suddiviso momentaneamente in due locali più bagno con box doccia e antibagno ma esiste la possibilità di creare tre locali e realizzare un poliambulatorio medico completo di sale d'attesa, bagni, spogliatoi e bagni per disabili, oppure è' possibile ricavare un bar con piccola ristorazione e sfruttare l'esterno che si può arredare con n. 6 ombrelloni e ricavare 100 posti a sedere. Il negozio è in ottime condizioni come nuovo in quanto è stao riqualificato di recente.
Le presenti informazioni non costituiascono elemento contrattuale
per info tel. al Sig. Leonardi Stefano al 329-4943085
Euro 170.000
Le presenti informazioni non costituiascono elemento contrattuale
per info tel. al Sig. Leonardi Stefano al 329-4943085
Euro 170.000
Consistenze
| Descrizione | Superficie | Sup. comm. |
|---|---|---|
| Principali | ||
| Negozio - piano terra | 87 Mq | 87 Mqc |
| Totale | 87 Mqc | |
